产品展示

产品类别

联系我们

联系人:黄先生
手机:13923879844
邮箱:553604208@qq.com
网址:www.mingzhiyuan168.com
地址:深圳市宝安区西乡街道固戍村南昌队三围工业区B栋厂房一楼
铝长城格
啡橡木
啡橡木
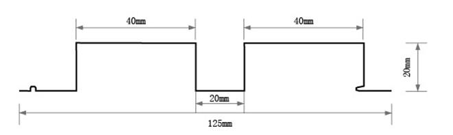
在铝合金板的表面做出木纹的效果。古典奢华的底色,配备尊贵优雅的面色,是古典与现代的完美结合。长城状的凸起和槽位都在小长城的基础上有了较大的提升,给人以更加突出的视觉效果,天然木纹的效果,彰显大气非凡。主要用于墙面背景、吊顶(含异型吊顶)、商铺门头等范围的装修。不含甲醛,具有防水、防火、防腐,安装简单等特有性能,即装即住,是现代装修的主要环保材料。

产品详情:
1.jpg

上一个:深花梨
下一个:白橡木
深圳市名之源建材有限公司

联系人:黄先生  

手机:13923879844
 
邮箱:553604208@qq.com

网址:www.mingzhiyuan168.com 

工厂1 :广东省深圳市宝安区顺昌路西乡三围华丰第一科技园A区B栋1楼

工厂2 :广东省佛山市南海区狮山镇唐边村文二经济社“九文岗”工业区自编8号(住所申报)


CopyRight © 2019 深圳市名之源建材有限公司 ICP备案号:粤ICP备12088268号

在线
客服

在线客服时间:9:00-18:00

选择下拉客服:

热线
电话

13923879844
7*24H 服务

关注
我们

关注我们
TOP